Casa adosada obra nueva con jardín para comprar en Incles - Casa 3
Contecta con wahtsapp

Home > propiedades > Casa adosada obra nueva con jardín para comprar en Incles - Casa 3

RS489

1.780.000 €

Casa adosada obra nueva con jardín para comprar en Incles - Casa 3

  • 350 m2
  • 3
  • 4
  • 5

Casa adosada obra nueva con jardín para comprar en Incles - Casa 3

  • Cocina Amueblada
  • Armarios Empotrados
  • Ascensor
  • Exterior
  • Zonas Verdes
  • Barbacoa
  • Lavadero
Espectacular casa adosada de nueva construcción para comprar en Incles, ubicada en un entorno idílico rodeado de naturaleza, con fantásticas vistas, caminos maravillosos para los amantes de los deportes al aire libre y a pocos metros de las pistas de esquí.
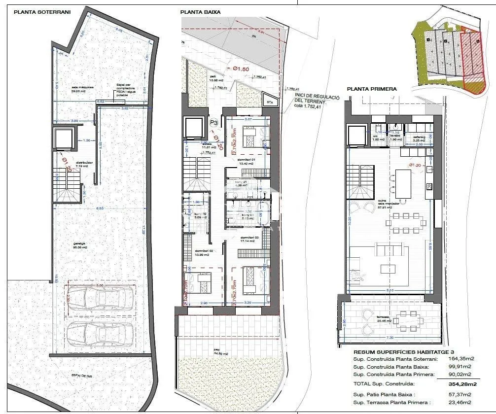
Esta propiedad tiene una superficie construida aproximada de 354m² y se distribuye de la siguiente manera.
En la planta subterránea de la propiedad encontramos un garaje de 95m² con capacidad para 5 vehículos y la sala técnica de la propiedad. Conectamos esta planta con la principal mediante unas escaleras y un ascensor. En la planta principal encontramos la zona de noche formada por tres dormitorios en suite con vestidor y baño completo, todas las suites tienen ducha y una de ellas también tiene bañera. Todas las estancias son exteriores y luminosas. En esa planta destacamos el maravilloso jardín de 57 m² que rodea la casa y nos ofrece una sensación de amplitud.
La planta superior de la propiedad está destinada a la zona de día donde tenemos una amplia cocina totalmente equipada con electrodomésticos de alta gama integrada al salón-comedor con una fantástica chimenea. Desde el comedor tenemos acceso a una bonita terraza que nos ofrecerá unas increíbles vistas a las pistas de esquí y a las montañas. Esta zona se complementa con un aseo de cortesía y un espacio para la lavandería.
Esta casa adosada es ideal para aquellos futuros compradores que quieran vivir un entorno idílico, tranquilo y rodeado de naturaleza a tan solo 25 minutos en coche del centro financiero y comercial del país.

Solicitar más información

Inmuebles similares Canillo

Ref: RS702

Compra · Adosados

Canillo

  • 280 m2
  • 3
  • 4
  • 3

1.470.000

Ref: RS480

Compra · Adosados

Canillo

  • 280 m2
  • 3
  • 4
  • 3

1.850.000